Sobe Gazetesi 2025 - Ankara Garı Yerleşkesi Medipol Üniversitesi’ne mi verildi?
GÜNCELKENTPOLİTİK GÜNDEMKÜLTÜR SANATBASINDANYAZARLARSOBEDENSOBELEDİKLERİMİZRÖPORTAJLARGEZENTİYUMURTALAR
Ara
Ankara Garı Yerleşkesi Medipol Üniversitesi’ne mi verildi?

Ankara Garı YerleÅŸkesi Medipol Üniversitesi’ne mi verildi?

Mimarlar Odası Ankara Åžubesi ve BirleÅŸik Taşımacılık Çalışanları Sendikası (BTS), Ankara Gar YerleÅŸkesi’ne iliÅŸkin plan deÄŸiÅŸikliÄŸi yapıldığını, gar yerleÅŸkesinin plan notlarında özel üniversite alanı olarak görüldüğünü bildirdi. Meslek odaları hükümet yetkililerine “Burası SaÄŸlık Bakanı’nın kurucu olduÄŸu Medipol Üniversitesine mi verilmiÅŸtir? Bu plana dava açacağız, kamu yararına aykırı bir ÅŸekilde, tarihi olan bir alanda yaklaşık 300 bin metrekarelik bir yapılaÅŸma öngörülüyor. Öte yandan, ÅŸehir hastaneleri ile birlikte kentteki hastanelere ihtiyaç yok derken, kent merkezinde neden hastane yapılıyor? Açıklama bekliyoruz” sorusunu yöneltti.

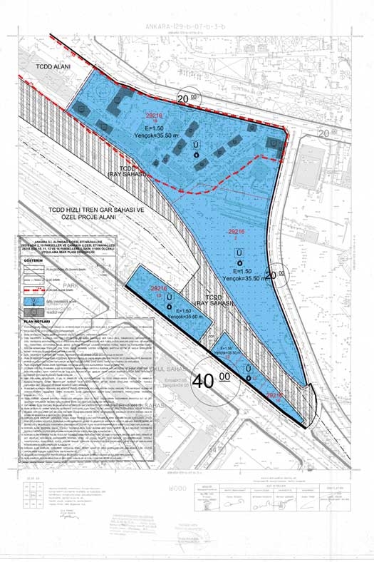
Mimarlar Odası Ankara Åžubesi ve BirleÅŸik Taşımacılık Çalışanları Sendikası (BTS), düzenlediÄŸi basın toplantısıyla  TCDD Ankara YerleÅŸkesi’ne dair Çevre Åžehircilik İl Müdürlüğü’nde askıya çıkan Eti Mahallesi 29216 ada 2,19 parseller ve Çankaya İlçesi Eti Mahallesi 29216 ada 10,11,12 ve 16 parsellere iliÅŸkin 1/1000 ölçekli Uygulama İmar Planı DeÄŸiÅŸikliÄŸi’ni masaya yatırdı. 

1.5 emsal ve emsal dışı yapılaşma ile yaklaşık 300 bin metrekarelik yapılaşma öngörülüyor

Mimarlar Odası Ankara Åžube BaÅŸkanı Tezcan KarakuÅŸ Candan, “Plan notları deÄŸerlendirildiÄŸinde, söz konusu alanda emsal artışlarıyla birlikte 300 bin metrekarelik bir yapılaÅŸma öngörülüyor. Plan deÄŸiÅŸikliÄŸinde bu alanın özel üniversite alanı olduÄŸu ifade ediliyor. Bu demektir ki bu alan bir vakıf üniversitesine tahsis edilmiÅŸ durumda Hacı Bayram Veli Üniversitesi bir devlet üniversitesi olarak devre dışı kalmış durumda. O dönem hazineye mi verilecek yaklaşımları tartışmadayken bir taraftan da Medipol’e verilecek saÄŸlık kampüsü olacak gibi söylemler vardı. Buranın da yaklaşık tıp fakültesi olacağı içinde hastane iÅŸlerinin de gerçekleÅŸeceÄŸi ifade ediliyor. Hükümet bize bir açıklasın Medipol Üniversitesi’ne mi verilmiÅŸtir?” dedi.

Alanda 13 tescilli yapı var, endişeliyiz

Candan, sözlerine şöyle devam etti:

“Medipol Üniversitesi’nin kurucusu SaÄŸlık Bakanı. SaÄŸlık Bakanlığı yapan birisinin üniversitesine mi tahsis edilmiÅŸtir? Bunu açıklamaları gerekiyor. Bu alanda 116 bin metrekarelik emsal 1,5’tan bir inÅŸaat öngörülüyor. Bodrum katların tamamı emsal dışı olarak gösteriliyor. Emsal dışı yapılaÅŸmalarla birlikte 2’yi aÅŸacak  bir emsal artışı görülüyor. Gar yerleÅŸkesinin daha önce 49 bin metrekarelik alanı hazineye devredilmiÅŸti. Planda küçük parsellerle birlikte alan yaklaşık 78 bin metrekare. Bu plan deÄŸiÅŸikliÄŸinde ise 116 bin metrekarelik inÅŸaat alanı verilirken 300 bin metrakarelik bir inÅŸaat alanıyla karşı karşıyayız. Bina yükseklikleri 35,5 metre olacak. Burası Ankara’nın en önemli noktalarından birisi. Ankara Gar YerleÅŸkesi BaÅŸkent’in Cumhuriyet’e açılan kapısıdır. Bunun bölünmesini de özel bir vakıf üniversitesine verilmesini de doÄŸru bulmuyoruz. Alanın içinde 13 tescilli yapı var. TCDD Müzesi ve  Mimar Kemalettin’in eseri İkinci Bölge Müdürlüğü var. Bu 13 yapı da vakıfa tahsis edilmiÅŸ durumda. Buradaki tescilli yapılarla ilgili tedirginiz. Tescilli yapıların yanına yapılacak inÅŸaatlarda çekme mesafesi yok. Bu dibine yapılabileceÄŸi anlamına geliyor. Tescilli yapıdan çekme mesafesi diye bir ÅŸey yok. Tescilli yapıların kapatan bir proje de önümüze gelebilir. Plan deÄŸiÅŸikliÄŸini  hukuksal sürece taşıyacağız ve daha önce açtığımız protokol anlaÅŸmasının iptali ile birlikte Ankara Garı’nın bir bütün olarak korunmasını öngörüyoruz. Birde ulaşım açısından önemli bir boyutu var Ankara ulaşımı kitlenecek."

Çevrede 10 hastane var, neden ihtiyaç duyuldu?

Bu bölgenin bir hastaneye ya da tıp fakültesine ihtiyacının olmadığını da bildiren Candan, şunları söyledi:

“Bu açıdan baktığımızda gar çevresinde 1,5 -2 kilometre uzaklıkta 10 hastane olduÄŸunu görüyoruz. Bu yerleÅŸke Gazi Üniversitesi Tıp Fakültesi’ne 2, Numune Hastanesine 1, Hacettepe Tıp Fakültesi’ne 1,3 kilometre, İbn-i Sina ve Ankara Üniversitesi Tıp Fakültesine 1,5 kilometre, bu alan diÄŸer hastanelere ise 1,5 2 kilometre uzaklıktadır. Bunun da gerçekçi olmadığını düşünüyoruz. Siz bütün hastaneleri Bilkent ve Etlik Åžehir Hastanelerine taşırken bir taraftan da böyle bir ihtiyacımız var diyorsunuz. Bu ihtiyaç demek ki kiÅŸisel beklentiler ve baÅŸka tür iliÅŸkiler üzerinden ÅŸekillenen ihtiyaçlar. Bunun kamuoyuna açıklanması gerekiyor. EÄŸer bu alan saÄŸlık bakanının üniversitesine verilmiÅŸ ise vehamet bir durum. Plan notları bu bakış açısını güçlendiriyor.”

Ankara trafiği içinden çıkılmaz bir hal alacak

Candan, plan deÄŸiÅŸikliÄŸinin onaylanması durumunda Ankara trafiÄŸinin içinden çıkılmaz bir hal alacağı uyarısında da bulunarak, “Burada 3,4 parsel var. Bu parsellerle ilgili yaya ve taşıt geçiÅŸine dair de bütün plan ve projeler yapılabilir deniyor. TCDD ray sahasının üstünden ve altından yaya ile taşıtların geçebilir. Bu bölge zaten bir Roma dönemi.  Kazılınca Roma dönemi eserleri de çıkabilir.. Bu bölgede EGO Hangarlarının olduÄŸu yerde 70 katlı bir yapılaÅŸma  var. Onun getireceÄŸi yükle birlikte  Ankara trafiÄŸi kilitlenecek. Ankara Garı’nın yerleÅŸkesinin parçalanarak hem bir tıp fakültesi hem de hastanesinin yapılması ile birlikte burada ekstra bir yük getirecektir. 300 bin metrekarelik bir inÅŸaat alanı, buraya giriÅŸ çıkışlar acil servisi düşündüğümüzde Ankara’nın göbeÄŸine atılmış bir bomba olarak düşünebilirsiniz. Ankara’nın kalbi durumda olan ve diÄŸer ilçelerle bağını saÄŸlayan önemli bir yer.”

İşletmecilik zafiyeti ile karşı karşıyayız

BTS Ankara Şube Başkanı İsmail Özdemir ise şu değerlendirmeyi yaptı:

“Ankara Garı kentin merkezinde bir yerde Cumhuriyet’in temellerin atılmasıyla Ankara Garı birlikte ÅŸekillendi.  Ankara Garı kamusal alanın iktidar tarafından talanıyla karşı karşıya. Kayseri ve İstanbul garlarında da böyle olmuÅŸtu. Åžehirlerin merkezinde kalan alanları iktidar kendisine mülk yapma, yandaÅŸlarına peÅŸkeÅŸ çekme uÄŸraşı içinde. Uzunca bir zamandır TCDD iÅŸletmeciliÄŸi yapılırken, Ankara Yeni Tren Garı ile birlikte demiryolu iÅŸletmeciliÄŸi yavaÅŸ yavaÅŸ sekteye uÄŸramış vaziyette.  Eskiden Ankara Garı’nda 17 hat varken, 13 hata düşürüldü. Ağırlık alışveriÅŸ merkezi yapıldı. Bizler çalışanlar olarak manevra yaparken zorlanıyoruz. Burada demiryolu araçlarımızın konum yön deÄŸiÅŸtirme kuÅŸak hattı  vardı. Burayı kapattılar hat sayısını düşürdüler ciddi ÅŸekilde iÅŸletmecilik zafiyeti ile karşı karşıyayız. Bu binaları getirip buraya yerleÅŸtirdiklerinde de haliyle nüfus ve yerleÅŸim artacak.  Bizler bu yanlış gidiÅŸata karşı Kayseri’de dava açmıştık ve hukuki yönden kazanım elde etmiÅŸtik. Yine Mimarlar Odası Ankara Åžubesi ile dava açtık. Biz bunu toplum vicdanına taşıyacağız ve toplum vicdanında geri adım attıracağız. Hukuki anlamda ve eylemsel anlamda mücadeleye devam edeceÄŸiz.”


Toplam Görüntülenme : 69362
Kategori Haberleri

Bilirkişiler: AOÇ arazilerini parçalayan yol güzergahı, tarihi ve doğal kimliği yok eder
Raporu deÄŸerlendiren Mimarlar Odası Ankara Åžube BaÅŸkanı Tezcan KarakuÅŸ Candan, “ BilirkiÅŸiler haklılığımızı ve AOÇ’nin yollarla talanını gözler önüne sermiÅŸtir. Atatürk Orman ÇiftliÄŸi’nin habitatını bozan, bütünlüğünü parçalayan, kamu yararına aykırı, rant ve talan planlarının  peÅŸini bırakmayacağız Atatürk Orman ÇiftliÄŸi kırmızı çizgimiz” dedi.
28 Temmuz 2023
Mimarların mücadelesi sonucu, İmrahor Vadisi’ni katledecek planlar bir bir iptal ediliyor
Mimarlar Odası Ankara Åžubesi, İmrahor Vadisi’nin katledilmesine izin vermiyor.  Mimarlar Odası Ankara Åžubesi, plan deÄŸiÅŸiklikleriyle yapılaÅŸmaya açılmak istenen İmrahor Vadisi için hukuksal mücadeleyi sürdürürken, yargı da kamu yararına aykırı plan deÄŸiÅŸikliklerini bir bir iptal ediyor.
26 Temmuz 2023
Yargı, Ulus’ta Roma Hamamı’nı tehdit eden yüksek katlı yapılaşmaya izin vermedi
Mimarlar Odası Ankara Åžubesi, Ulus Tarihi Kent Merkezi’nin  deÄŸerini ve potansiyelini yok sayan plan deÄŸiÅŸikliklerini peÅŸini bırakmıyor.
08 Haziran 2023
İktidarın Saraçoğlu Mahallesi’nde hukuksuz imar planlarına yargıdan iptal kararı
Candan: SaraçoÄŸlu Mahallesini satmak istediler, satamadılar, yıkmak istediler, yıkamadılar. Kamusal deÄŸerini ranta açmak istediler, açamadılar. SaraçoÄŸlu Mahallesi Mimarlar Odası Ankara Åžubesi’nin 30 yıldır akıllı inatla sürdürdüğü mücadelenin kazanımıdır. Seçim öncesi halkımıza armaÄŸanımız olsun.
10 Mayıs 2023

1 2 3 4 5 6 7 8 9 10
> >>>

Yorumlar
Yorum eklenmemiÅŸ.
Yorum için giriş yapınız!